45 Newgate RdKilbuck Twp, PA 15202




Mortgage Calculator
Monthly Payment (Est.)
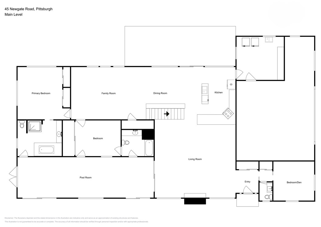
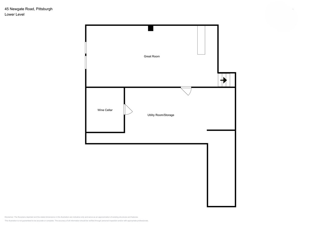
$4,540Mid-Century Modern Marvel with Indoor Pool on a delightful full acre home site! Welcome to 45 Newgate Road, a truly exceptional mid-century modern ranch nestled on a sprawling, one-acre lot. Enjoy the Kilbuck Township setting and the undeniable charm and tight-knit community feel of neighboring Ben Avon Heights, this 3-bedroom, 2.5-bath retreat is a rare architectural gem. Nicely set back from the street for ultimate privacy, the home greets you with a beautiful entry door featuring leaded sidelights. Inside, you'll find over 3,100 square feet of open, flexible living space defined by vaulted ceilings, striking exposed beams, and an abundance of natural light streaming through the skylights. The heart of the home is anchored by a cozy brick fireplace with gas logs and flows seamlessly into the eat-in kitchen, which features sleek granite countertops, a smooth surface range, a center island with bar seating, and a convenient built-in planning desk. Designed for year-round entertaining and wellness, this property features a spectacular indoor pool with direct access to a sun patio. The primary suite boasts an updated bath complete with a luxurious tile shower and a relaxing jetted tub. The second bedroom offers direct access to a renovated bath with skylight. The third bedroom/den offers a vaulted ceiling. The lower level extends your living space with a large game room/home gym, a dedicated wine cellar, and an abundance of storage space. Outdoor living is just as impressive. Unwind on the covered rear patio, gather around the built-in fire pit on cool evenings, or utilize the custom Amish-built storage shed. With an oversize 2-car attached garage and located in the Avonworth School District, this one-of-a-kind home perfectly balances architectural character, modern amenities, and an unbeatable location.
| 2 hours ago | Listing first seen on site | |
| 7 hours ago | Listing updated with changes from the MLS® |
INFORMATION DEEMED RELIABLE, BUT NOT GUARANTEED. IDX information is provided exclusively for consumers’ personal, non-commercial use and may not be used for any purpose other than to identify prospective properties consumers may be interested in purchasing.
Last checked: 2026-03-04 10:21 PM UTC


Did you know? You can invite friends and family to your search. They can join your search, rate and discuss listings with you.